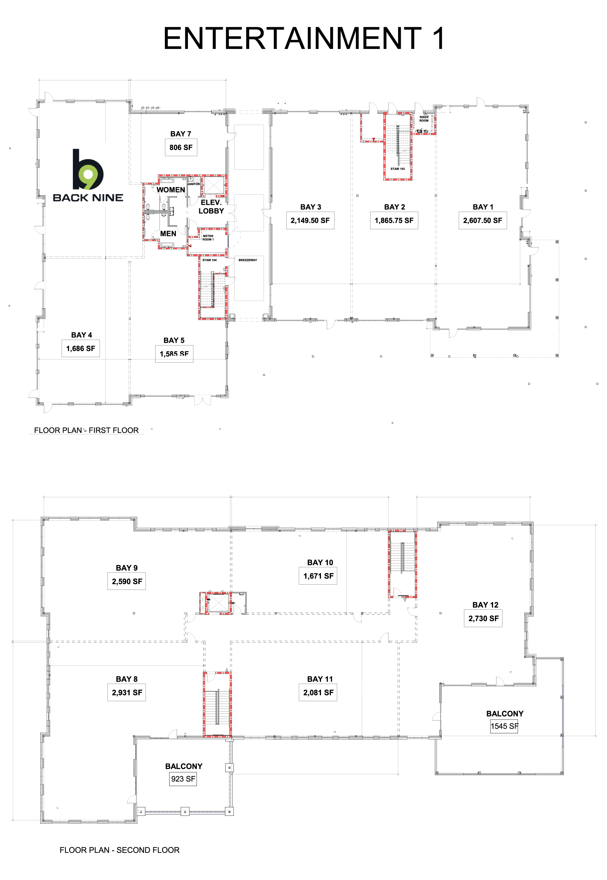
Phase 2 of the development offers two buildings with over 60,000 square feet of entertainment, restaurant, retail, and office space anchored by an outdoor stage and open lawn area.

The entertainment and retail buildings will be two stories, with a 15,000 sq. ft. Monster Mini Golf venue, a 24/7 Back Nine golf simulator, and room for balconied restaurants upstairs and retail on the ground level.


Every aspect of the second phase of development will be centered on connection- connecting the indoors to outside, and connecting people with different activities, groups, and experiences.

Think open spaces, multilevel seating options, breezeways, large windows, wraparound patios, and plenty of natural light.

Each building will offer balconies for extra seating, outdoor dining, socializing, and great views, truly creating an immersive, fun atmosphere.

The outdoor, elevated stage will be 2,200 square feet, facing south to avoid direct sunlight, and will utilize awnings to create shaded seating for the audience.
This is a venue created to provide opportunity for local and regional artists, movie nights, yoga classes, and other events planned to directly impact the local community.
